Appartamento in Vendita a VERGATO
VERGATO: a pochi km. dal centro, in borgo storico con…
50.000€
Vendita
39.000€
Castiglione dei Pepoli, a pochi chilometri dalle uscite autostradali A1 BO-FI di Pian Del Voglio, Badia e Roncobilaccio, in posizione strategica , vicinissima all’Ospedale e a due passi dalla piazza del paese, proponiamo in vendita cinque appartamenti, attualmente a reddito, all’interno di una palazzina composta da otto unità abitative.
Gli immobili possono essere acquistati singolarmente oppure in blocco, rappresentando una soluzione ideale sia per uso residenziale che come ottimo investimento.
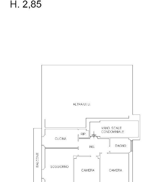
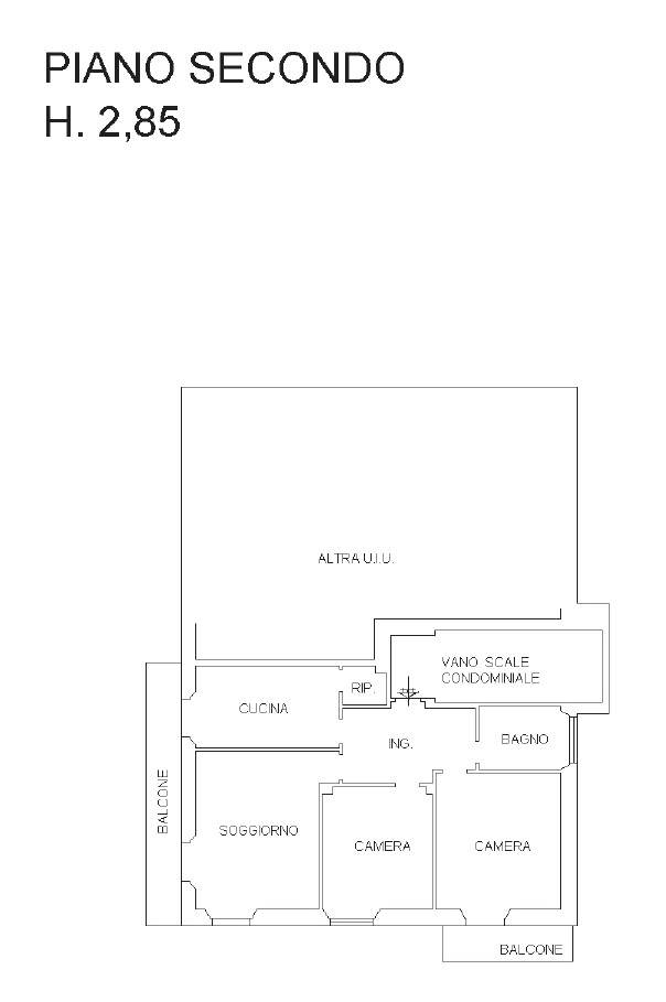
Il 3° Appartamento si trova al piano secondo ed è composto da ingresso, due camere da letto, di cui una con accesso a un piccolo balcone, bagno, ripostiglio, soggiorno e cucina con uscita sul balcone.
Scopri subito tutte le opportunità disponibili! Contattaci per fissare una visita.
VERGATO: a pochi km. dal centro, in borgo storico con…
50.000€
VERGATO: a pochi km. dal centro, in borgo storico con…
29.000€
Appartamento in Vendita a CASTIGLIONE DEI PEPOLI
| Cookie | Durata | Descrizione |
|---|---|---|
| cookielawinfo-checkbox-analytics | 11 months | Questo cookie è impostato dal plugin GDPR Cookie Consent. Il cookie viene utilizzato per memorizzare il consenso dell'utente per i cookie nella categoria "Statistici". |
| cookielawinfo-checkbox-functional | 11 months | Il cookie è impostato dal GDPR cookie consenso per registrare il consenso dell'utente per i cookie nella categoria "Funzionali". |
| cookielawinfo-checkbox-necessary | 11 months | Questo cookie è impostato dal plugin GDPR Cookie Consent. I cookie vengono utilizzati per memorizzare il consenso dell'utente per i cookie nella categoria "Necessari". |
| cookielawinfo-checkbox-others | 11 months | Questo cookie è impostato dal plugin GDPR Cookie Consent. Il cookie viene utilizzato per memorizzare il consenso dell'utente per i cookie nella categoria "Non classificati" |
| cookielawinfo-checkbox-performance | 11 months | Questo cookie è impostato dal plugin GDPR Cookie Consent. Il cookie viene utilizzato per memorizzare il consenso dell'utente per i cookie nella categoria "Prestazioni". |
| viewed_cookie_policy | 11 months | Il cookie è impostato dal plugin GDPR Cookie Consent e viene utilizzato per memorizzare se l'utente ha acconsentito o meno all'uso dei cookie. Non memorizza alcun dato personale. |